ISWD80-125(I)单级单吸低转速卧式离心泵 |
||||||||||||||||||||||||||||||||||||||||||||||||||||||||||||||||||||||||||||||||||||||||||||||||||||||||||||||||||||||||||||||||||||||||||||||||
|
|
||||||||||||||||||||||||||||||||||||||||||||||||||||||||||||||||||||||||||||||||||||||||||||||||||||||||||||||||||||||||||||||||||||||||||||||||
![]()
产品介绍 ISWD80-125(I)单级单吸低转速卧式离心泵
ISWD80-125(I)单级单吸低转速卧式离心泵安装说明 1、安装时管路重量不应加在水泵上,应有各自的支承体,以免使泵变形影响运行性能和寿命。 2、泵与电机是整体结构,安装时无需找正,所以安装时十分方便。 3、安装时必须拧紧地脚螺栓,以免起动时振动对泵性能的影响。 4、安装水泵前应仔细检查泵流道内有无影响水泵运行的硬质物(如石块、铁粒等),以免水泵运行时损坏叶轮和泵体。 5、为了维修方便和使用安全,在泵的进出口管路上各安装一只调节阀及在泵出口附近安装一只压力表,以保证在额定扬程和流量范围内运行,确保泵正常运行,增长水泵的使用寿命。 6、泵用于有吸程场合,应装有底阀,并且进口管路不应有过多弯道,同时不得有漏水、漏气现象。 7、排出管路如安装逆止阀应装在闸阀的外面。 8、安装后拨动泵轴,叶轮应有磨擦声或卡死现象,否则应将泵拆开检查原因。 9、泵的安装方式分为硬性联接和柔性联接安装。 ISWD80-125(I)单级单吸低转速卧式离心泵安装方式
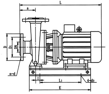
ISWD80-125(I)单级单吸低转速卧式离心泵附件及安装尺寸
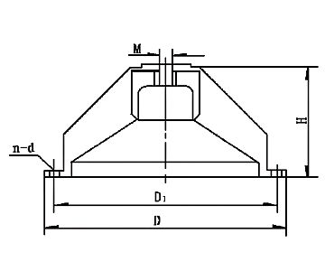
ISWD80-125(I)单级单吸低转速卧式离心泵泵基础图
泵安装尺寸图表
泵安装尺寸图表
因产品生产批次、型号不同,产品图片及安装尺寸仅供参考,详情可联系我们的销售人员了解更多ISWD80-125(I)单级单吸低转速卧式离心泵相关信息!
|
||||||||||||||||||||||||||||||||||||||||||||||||||||||||||||||||||||||||||||||||||||||||||||||||||||||||||||||||||||||||||||||||||||||||||||||||



























